
Котел КВм 1000 кВт с ТШПМ в Нижнем Новгороде
Цена 1 413 000 рублей с НДС
Модель с механической топкой с шурующей планкой ТШПМ
Дутье и тяга регулируются шиберами, поставляются в комплекте с котлом
Труба сталь 20 повышенной прочности устойчива к коррозии, обеспечивает высокую теплопроводность
КПД свыше 80 %, минимальный расход топлива
Компактные размеры
Выход на номинальную мощность - 2-4 часа
Запас по мощности 15 %, сверх номинальной
Требования к качеству питательной воды минимальны
В конструкции предусмотрены люки для очистки поверхностей нагрева
Отапливаемая площадь помещения от 7700 до 11000 м2, отапливаемый объем от 22900 до 32900 м3.
Температура 95 - 115 градусов.
Марка котла | Котел КВм, Котел малой мощности | Вид топки | Топка ТШПМ |
---|---|---|---|
Максимальная тепловая мощность, кВт | 1000 | Отапливаемая площадь, м² | 7700-11000 |
Максимальная тепловая мощность, МВт | 1 | Отапливаемый объем, м³ | 22900-32900 |
Максимальная тепловая мощность, Гкал | 0.86 | Топливо | Уголь, Твердотопливный |
КПД (УГОЛЬ), не менее, % | 80 | Тяга | Уравновешенная |
Аэродинамическое сопротивление, Па (мм. вод. ст.) | 300 | Давление рабочей среды, МПа (кгс/cм²) | 0.3-0.6 |
Температура уходящих газов, °C | 200 | Гидравлическое сопротивление при перепаде t, МПа (кгс/cм²) | Не более 0.07 (0.7) |
Расход топлива при максимальной нагрузке котла (УГОЛЬ), кг/ч | 198 | Габаритные размеры котельного блока, длина*ширина*высота, мм | 2745*1775*1765 |
Расход теплоносителя среды, м³/ч | 34 | Габаритные размеры котла с топкой, длина*ширина*высота, мм | 4580*1775*2575 |
Расход условного топлива, кг/ч | 145 | Тип котла | Водогрейный, Промышленный |
Низшая теплота сгорания топлива УГОЛЬ, кКал/кг | 5230 | Температура воды, °C | 70-95, 90-115 |
Масса, кг | 2850 | Энергоэффективность | Высокая |
Расход топлива среднечасовой за отопительный сезон, кг/ч | 99 | Бренд | HeatExpert |
Это устройство работает со вспомогательным оборудованием, которое приобретается отдельно. Если вы хотите сразу узнать стоимость всей установки, добавьте заинтересовавшие вас позиции в корзину. Чтобы точно расчитать стоимость доставки до вашего объекта, укажите его адрес в корзине и оправьте нам заявку. Обычно мы отвечаем в течение дня.



Котел КВм с ТШПМ
Котлы КВм с ТШПМ промышленные
Котел КВм с ТШПМ - изготовление
Котлы КВм с ТШПМ
Котлы КВм с ТШПМ - производство
Топка ТШПМ котла КВм
Котел КВм промышленный с топкой ТШПМ
Промышленный котел КВм с ТШПМ - изготовление
Водогрейный котел КВм 1000 кВт с топкой ТШПМ в г Нижний Новгород. Характеристики:
- мощность 1.0 МВт, 1000 КВт, 0,86 ГКал;
- температура 95, максимальная температура 115 градусов
- давление 0,6 МПа;
- топка механическая с шурующей планкой ТШПМ;
- отапливаемая площадь котла от 7700 до 11000 кв м, отапливаемый объем от 22900 до 32900 м3 (в зависимости минимальной температуры в регионе эксплуатации). Проверить или подобрать мощность механического котла с ТШПМ для Нижнего Новгорода или любого другого города вы можете по ссылке.
- устанавливается в котельных административных, производственных зданий, отопительных котельных ЖКХ и блочно модульных котельных.
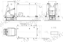
Устройство и описание механического котла КВм 1000 кВт с ТШПМ-1.45
Конструкция механического котла КВм 1000 кВт с планкой состоит из двух блоков – топки ТШПМ-1,45 и водогрейного котельного блока КВм.
Топочная камера механизированного котла КВм выполнена из стальных труб 57 с вваренной стальной полосой. Горячие газы выходят из топки вверху топочной камеры и поступают в конвективные секции. Секции конвективных пакетов устанавливаются двумя блоками. Горячие газы из котельного блока выходят в задней части сверху.
Циркуляция КВм 1 котел обеспечивает быстрый нагрев воды и выход на требуемую мощность. Локальные перегревы отдельных зон поверхностей нагрева исключаются точностью производимых расчетов гидравлики. Дренажи и воздушники производят дренирование трубной системы от шлама и удаление скапливающего воздуха.
Принцип работы твердотопливного водогрейного котла с ТШПМ
Топливо загружается в бункер топки ТШПМ транспортером топливоподачи ТС-2-30. Из бункера уголь ссыпается на блок решетку топки. Горящее топливо перемещается по блок решетке шурующей планкой. Образующаяся зола и шлак накапливается в задней части топки на поворотных колосниках. При принудительном опрокидывании шлак ссыпается в канал золоудаления и транспортером золы и шлака перемещается за пределы котельной.
Твердое топливо сгорает в топке. Горячие газы омывают трубную систему и нагревают воду. Максимальная температура воды в котле 115 градусов.
Циркуляция воды в котельном агрегате производится циркуляционным насосом. Для восполнения теплоносителя, теряемого при дренировании и в теплосети, производится подпитка подпиточным насосом.
Щит управления котла КВм 1000 кВт ограничивает предельно допустимые параметры работы, температуру и давление воды, минимальный расход теплоносителя, поддерживает минимально допустимое разряжение. Автоматика управляет временем движения шурующей планки. Это время настаивается в зависимости от калорийности и фракционного состава топлива, а также температурного графика котельной.
Водно-химический режим водогрейного котла должен быть организован в соответствии с требованиями руководства по эксплуатации и нормативной литературы по тепловым энергоустановкам и тепловым сетям. Для подбора водоподготовительной установки требуется провести химический анализ воды.
Подключение котла КВм 1000 кВт с топкой ТШПМ
Можно выполнить подключение промышленного котла КВм 1000 кВт ШП по типовой схеме подключения котла завода изготовителя. В зависимости от количества котельных агрегатов, наличия или отсутствия теплообменников существуют различные варианты. Механический отопительный котел на угле КВм 1000 кВт с топкой ТШПМ может быть подключен по схеме подключения, представленной ниже.
Все котельно-вспомогательное оборудование для подключения котла 1000 кВт с ТШПМ в Нижнем Новгороде вы можете купить на нашем котельном заводе. Также наш завод оказывает услуги по проектированию, монтажу, шеф монтажу и пуско-наладке котельных в Нижнем Новгороде.
Безопасность котла
Безопасная эксплуатация котла обеспечивается выполнением требований
- Инструкции по эксплуатации
- Правил устройства и безопасной эксплуатации водогрейных котлов с температурой нагрева воды не выше 115 °С
- Правил технической эксплуатации тепловых энергоустановок
Требования к помещениям котельной регламентируются СП 89.13330.2016 «Котельные установки»
Управление механическим водогрейным котлом КВм 1000 кВт на твердом топливе должно производиться автоматикой безопасности, имеющей сертификат соответствия.
Одним из самых важных устройств, обеспечивающих безопасную эксплуатацию водогрейного котла, является предохранительный клапан. Расчет пропускной способности для каждой мощности приведен в паспорте котла.
Гарантии изготовителя
На заводе изготовителе промышленные механический котел на угле КВм 1000 кВт с ТШПМ подвергается гидравлическому испытанию давлением 0,9 МПа (9 кгс/см2).
Гарантийное обслуживание включает в себя бесплатное устранение скрытых заводских дефектов, замену деталей и узлов вышедших из строя в период гарантийного срока при условии монтажа и эксплуатации оборудования Покупателем в соответствии с его назначением, технической документацией, техническими нормами, правилами ввода в эксплуатацию и эксплуатации данного оборудования. Срок эксплуатации котла 10 лет.
Механический котел с ТШПМ мощностью 1000 и 2500 кВт всегда есть в наличии на нашем заводе. Производство котлов с ТШПМ под заказ осуществляется в течении 20-30 дней.
Срок эксплуатации водогрейного котла с ТШПМ 10 лет.
Купить котел квм 1000 квт с тшпм в Нижнем Новгороде
Промышленный водогрейный котел КВм 1000 кВт с ТШПМ ( - мощность 1000 кВт; - твердое топливо уголь; - температура 115 градусов; - отапливаемая площадь* от 7700 до 11000 м2; - отапливаемый объем* от 22900 до 32900 м3 (* диапазон для самого холодного и самого теплого региона РФ)); - применение для отопления производства, жилых зданий, цехов, складов, промышленных предприятий.
Предлагаем вам подобрать мощность водогрейного промышленного котла по отапливаемой площади и объему, с учетом типа строения и данных о температуре в регионе и в Нижнем Новгороде, вида топлива.
Выбор водогрейного котла для котельной производится по каталогу отопительного оборудования нашего Котельного завода с помощью калькулятора подбора мощности. Водогрейные котлы отопления для промышленных предприятий предлагается выбрать из модельного ряда газовых, дизельных, мазутных, твердотопливных угольных и дровяных котлов, с ручными и автоматическими топками мощностью от 150 кВ до 4 МВт, и температурой нагрева теплоносителя до 115 градусов.
Подбор мощности водогрейного промышленного котла для отопления учитывает:
- температуру в самую холодную пятидневку в отопительный сезон. Для каждого региона РФ температура различна, данные берутся из СП 131.13330 «Строительная климатология»;
- тепло, необходимое для возмещения потерь тепла через ограждения, окна, двери здания и тепловые потери через не плотности строения и открываемые двери;
- температуру воздуха внутри помещений. Для различных типов и назначений строений она существенно отличается:
Тип отапливаемого строения | Температура внутри помещения |
---|---|
Жилые строения и административные здания | + 20 С° |
Больницы, детские сады | + 22 С° |
Учебные заведения, предприятия общепита, учреждения культуры, школы | + 16 С° |
Магазины и депо | + 15 С° |
Кинотеатры | + 14 С° |
Гаражи | + 10 С° |
Бани | + 25 С° |
- объем строения. Для определения наружного объема строения площадь по наружным стенкам строения на уровне первого этажа перемножается на высоту. Для панельных домов высота определяется: от уровня пола (нулевой отметки) до верхней плоскости теплоизоляционного слоя чердачного покрытия. Для остальных зданий высота определяется от уровня земли. Подбор мощности для отопления различных по назначению строений считается отдельно. Все полученные значения мощности складываются.
Подбор мощности водогрейного промышленного котла производится для общей суммарной мощности каждого отдельно стоящего задания.
Если вам требуется подобрать мощность котла в Нижнем Новгороде для котельной с учетом вентиляции здания, горячего водоснабжения объекта, потерь в теплотрассе - необходимо производить более подробный расчет. Данный расчет мы можем произвести для вас бесплатно. Отправьте опросный лист и заявку на электронный адрес sale@kotel-kv.ru или позвоните по телефону 8 (800) 551-70-98.